Planungsservices
Das Fundament einer automatischen Bewässerungsanlage ist immer eine professionelle Planung!
Im Großraum Berlin-Brandenburg führen wir für Kunden die Ihre Anlage durch uns installieren lassen möchten, kostenfreie Vor-Ort Termine durch, wenn Sie es wünschen.
Für Kunden die Ihre Anlage selbst installieren möchten bieten wir deutschlandweite Planungsservices an!
In unserer Erstberatung ermitteln wir, was Ihnen wichtig ist und welche Anforderungen Sie an Ihre automatische Bewässerungsanlage stellen.
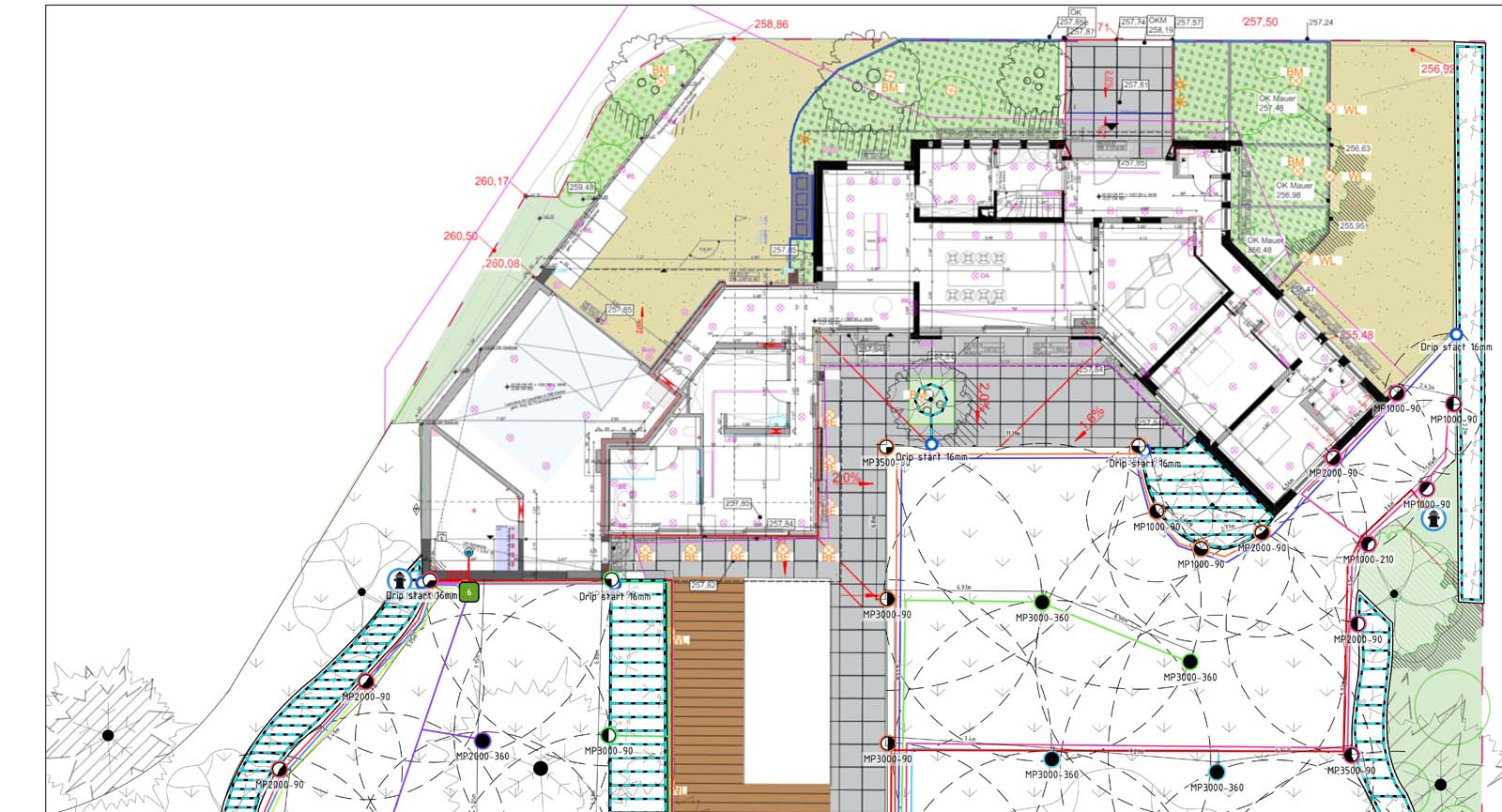
Vor Ort gucken wir uns die baulichen Gegebenheiten an, nehmen Wasserwerte und vermessen mittels modernster Technik Ihr Grundstück. Auf Basis der erhobenen Daten erstellen wir Ihnen in kürzester Zeit ein Angebot für die Installation Ihrer automatischen Bewässerungsanlage.
Für Kunden die Ihre Anlage selbst Installieren möchten, bieten wir den Planungsservice für 159,00€ im Großraum Berlin-Brandenburg an.
Im Rahmen des Planungsservices bieten wir Ihnen eine persönliche Beratung an, wir beantworten Ihre Fragen und ermitteln die Gegebenheiten. Im Anschluss planen wir Ihre Bewässerungsanlage und Sie erhalten die Planungsunterlagen sowie Material- und Stücklisten und das Angebot für Material und Werkzeug.
Für Interessenten außerhalb des Großraums Berlin-Brandenburg bieten wir einen deutschlandweiten Planungsservice an. Hierzu benötigen wir von Ihnen eine ausgefüllte Planungsdatei sowie eine Maßstabsgerechte und Detailnahe Zeichnung Ihres Grundstücks. Gegen eine Pfandgebühr versenden wir auch Durchflussmessgeräte die es Ihnen ermöglichen Wasserwerte zu ermitteln und diese zum Zwecke der Planung an uns weiterzuleiten.
Auch hierbei bieten wir im Rahmen des Planungsservices eine persönliche Beratung an, wir beantworten Ihre Fragen und ermitteln die Gegebenheiten. Im Anschluss planen wir Ihre Bewässerungsanlage und Sie erhalten die Planungsunterlagen sowie Material- und Stücklisten und das Angebot für Material und Werkzeug.
Während der Installation stehen wir Ihnen bei Fragen und Unklarheiten telefonisch zur Verfügung.
Zusammenfassend können wir Ihnen folgende Planungspakete anbieten
WIR planen, WIR installieren
Berlin-Brandenburg-
Vor-Ort Termin + Beratung
-
Planung + Angebot Montage
-
Detailplanung nach Auftragserteilung
WIR planen, SIE installieren
Berlin-Brandenburg-
Termin + Beratung
-
Planung + Angebot Material
-
Detailplanung wird ausgehändigt
WIR planen, SIE installieren
Deutschlandweit-
Beratung (digital/telefonisch)
-
Planung + Angebot Material
-
Detailplanung wird ausgehändigt
Kundenmeinungen











Bereit für Ihre Gartenrevolution?
Wenn Sie mögen, hinterlassen Sie gern Ihre Anfrage und Kontaktdaten. Wir melden uns zeitnah bei Ihnen.
Ihre Angaben nutzen wir ausschließlich zur Kontaktaufnahme.